Печать

1-комнатная квартира | 7/16 эт. | 48.70 м2 | #398561

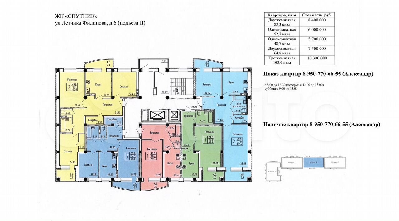
ул. Лётчика Филипова, д. 6
Показать на карте
Общая площадь
48.70 м2
Жилая площадь
19.00 м2
Кухня
10.40 м2
Этаж
7/16
5 700 000 руб. | 117 043руб./м2
Обновлено 19.02.2025 в 22:42
Предложение с Авито
Динамика цен
5 700 000 руб.
19.02.2025

Юридическая помощь

+7 (961) 185-01-88

  • Проверка юридической чистоты документов
  • Проведение безопасной сделки
  • Помощь в поиске и юридической проверке квартиры
  • Помощь в подготовке документов и узаконивании перепланировки
Услуги оказывает партнер сервиса - компания "Трансферт"
(26 лет на рынке)

ДОМ ЗАСЕЛЕН !!! Bыбоp квapтиp в ЖK «Спутник» oт ИП КИТ со 100% peмонтом! ✅ Спeциaльнoe предлoжeниe от Застрoйщика за наличную оплату: Скидка однокомнатные квартиры 400.000 рублей Скидка двухкомнатные квартиры 500.000 рублей Скидка трехкомнатные квартиры 600.000 рублей